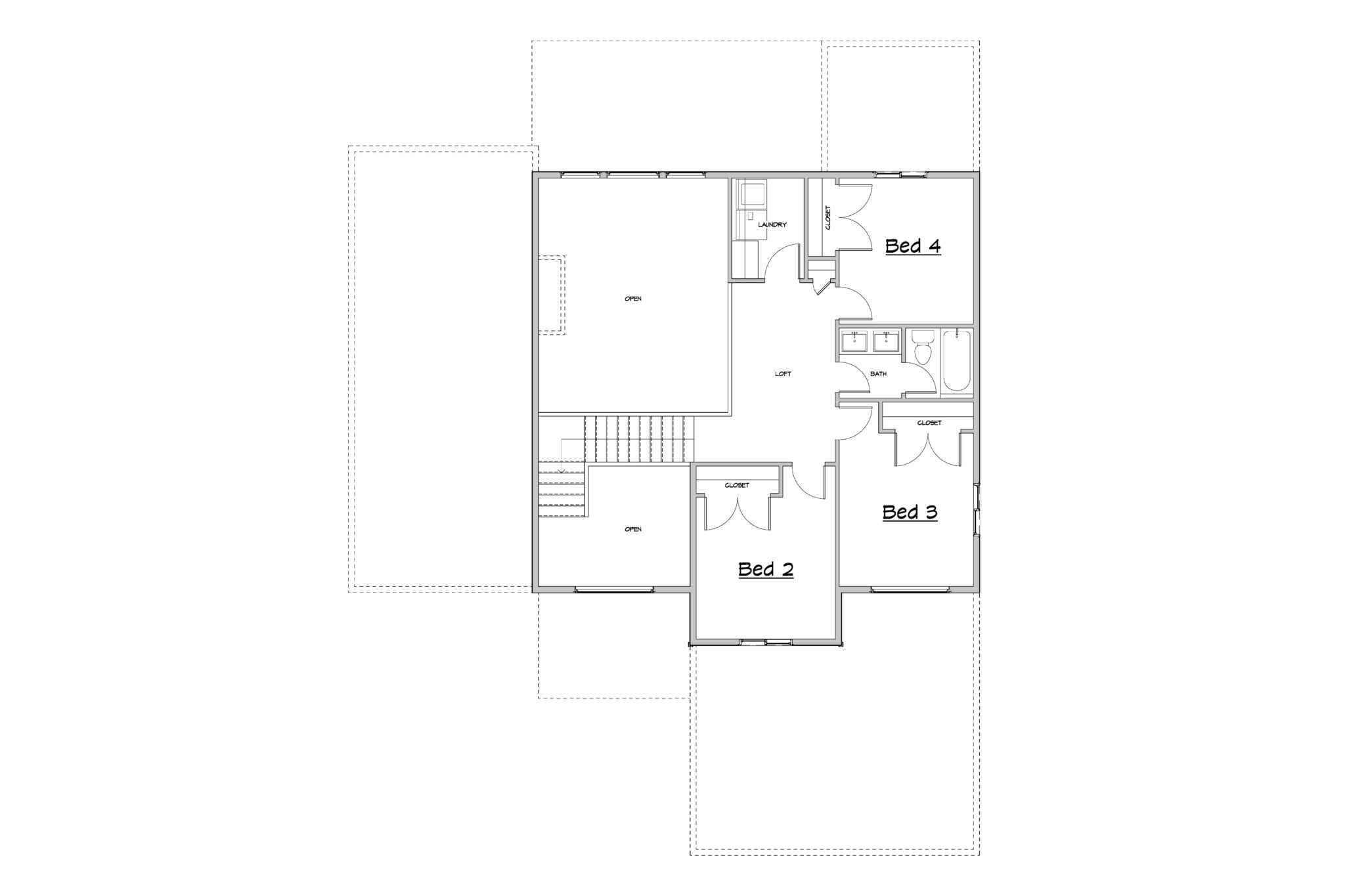
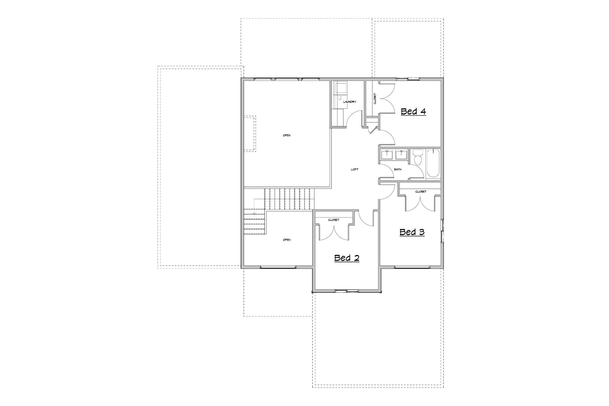
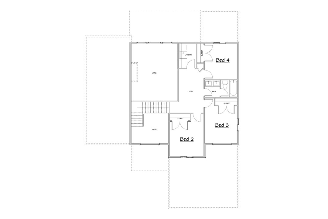
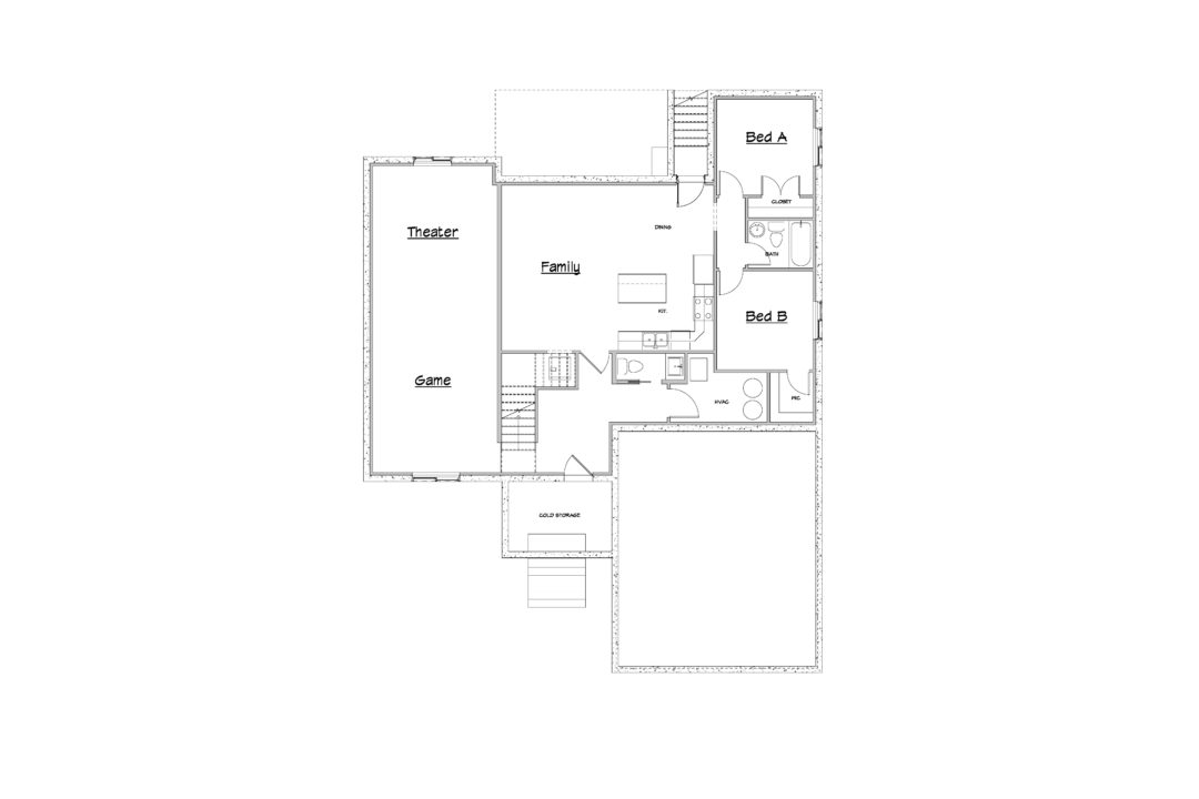
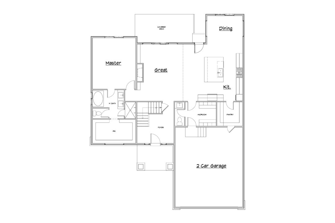
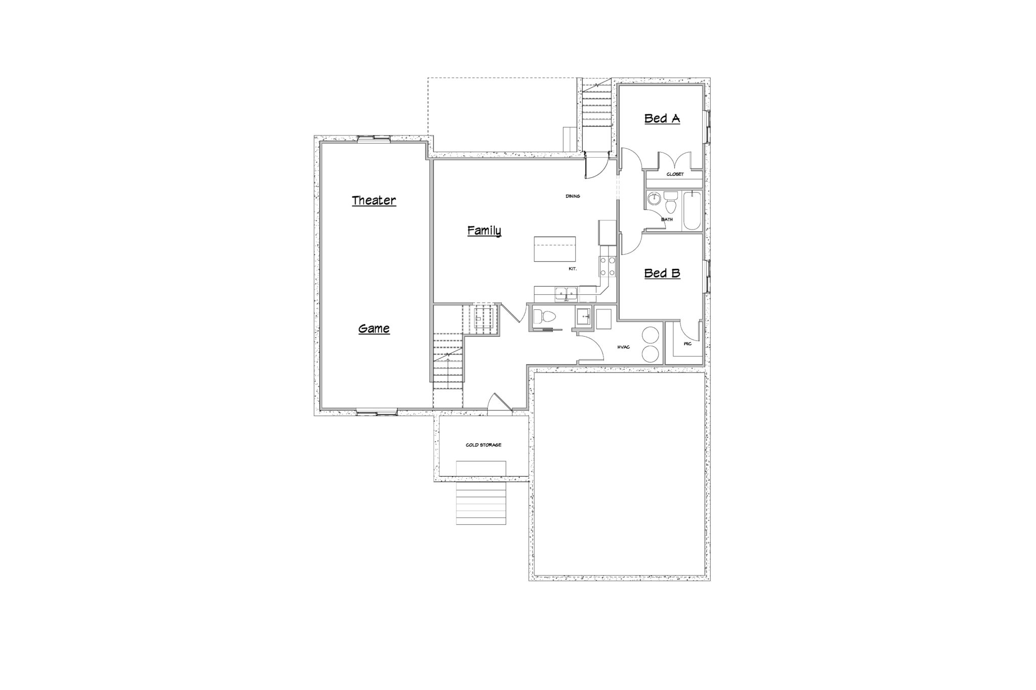
TWO STORY

Alex

Above Grade Sq.Ft.

2251

Bathrooms

Bedrooms

Garage

Width

48

Depth

61

Total Sq.Ft.

3771


Contact us for questions / modifications you would like to make.
This field is for validation purposes and should be left unchanged.
Your Name(Required)
Your Email Address(Required)