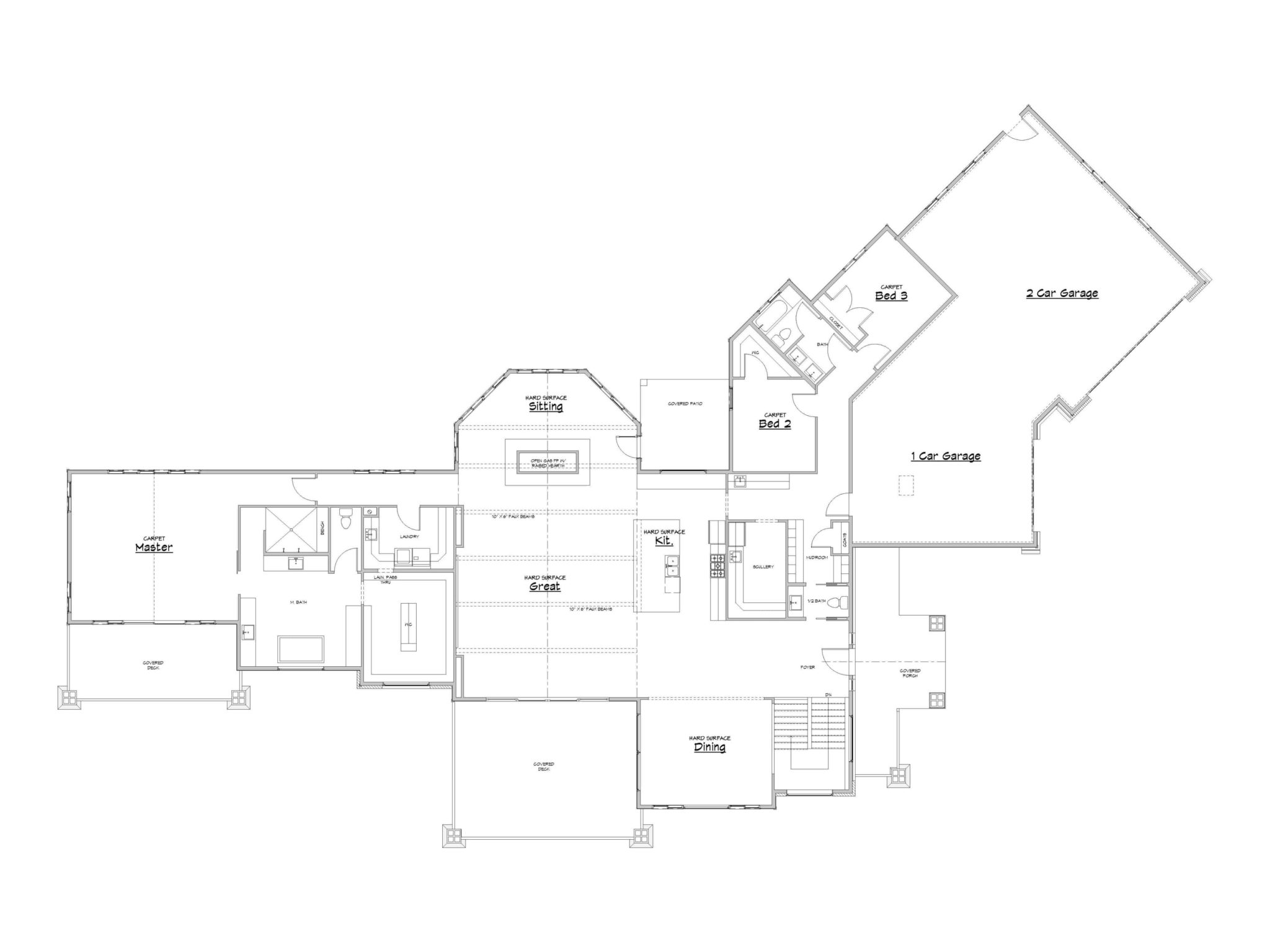
The Bryon plan is the perfect mountain side residence. Its rustic exterior with strong stone detailing makes for a stunning but subtle shift into the earthy elements where it sits. The interior features an open great and sitting room with three large windows that provide natural light and extraordinary views. This three-car garage house also features a large kitchen and master with a grand walk in closet and master bath. The Bryon plan has 5 bedrooms and includes a basement level with a craft, game, and family room with a wet bar. Bryon is an incredible home from its beautiful views and exterior to its large open floorplan.
Contact us for questions / modifications you would like to make.






