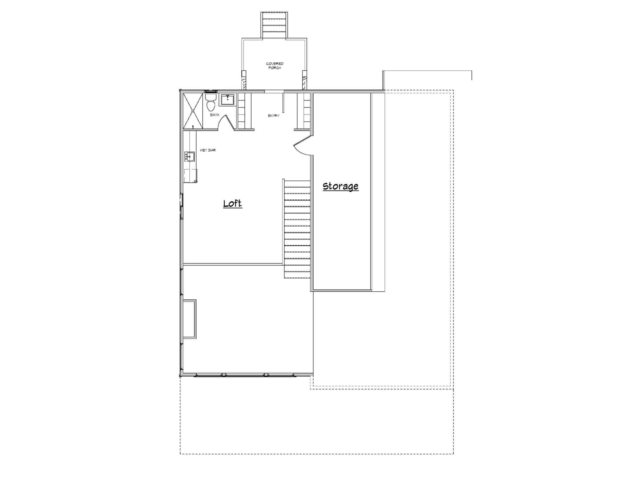
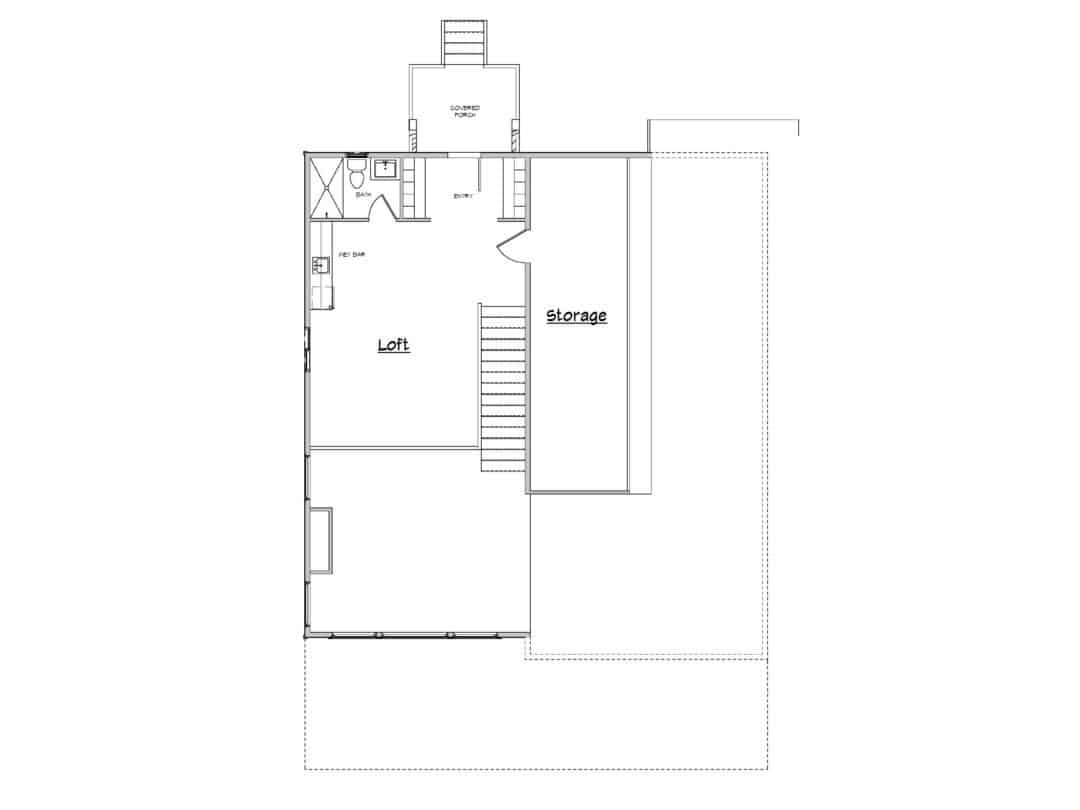
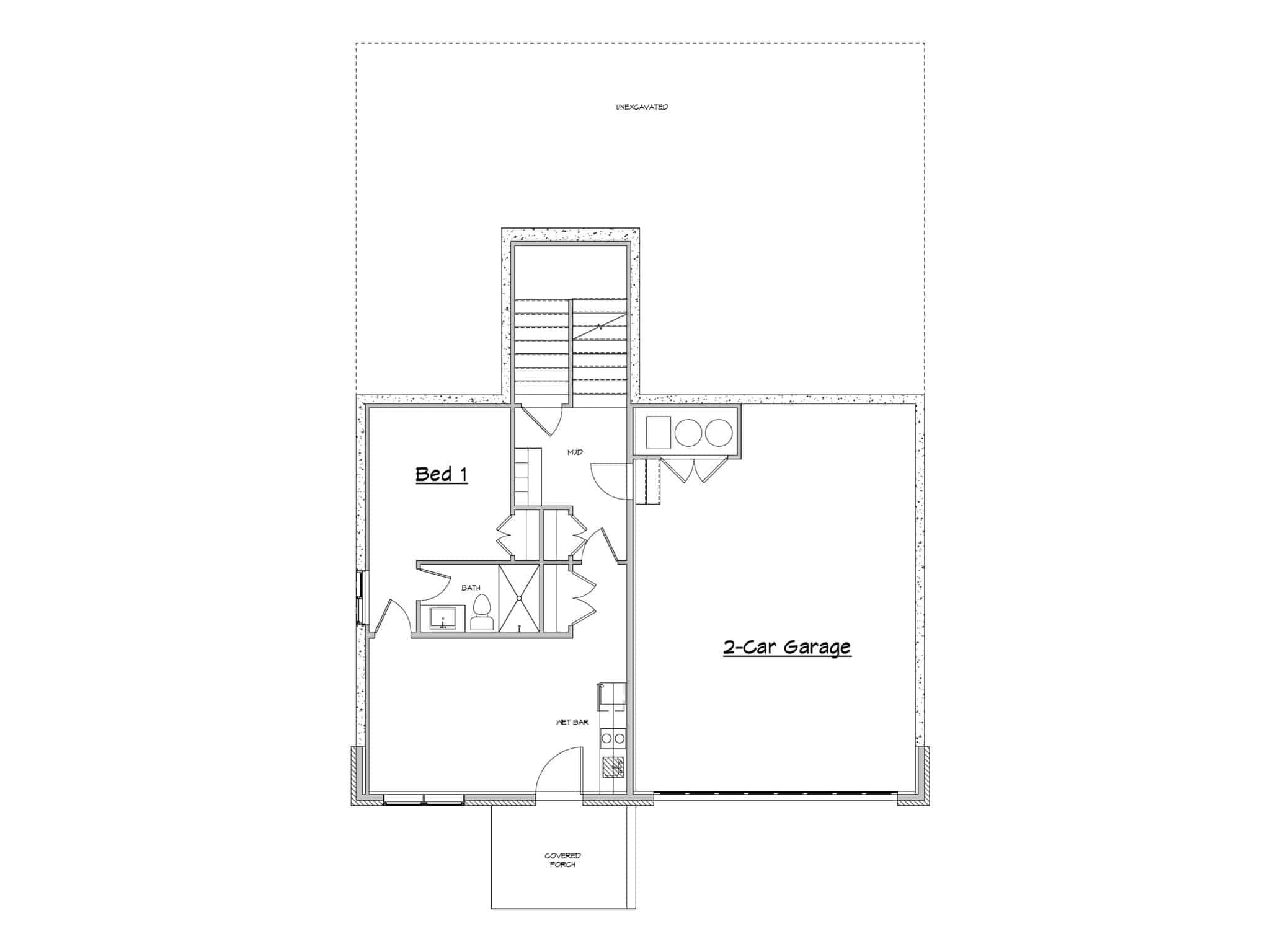
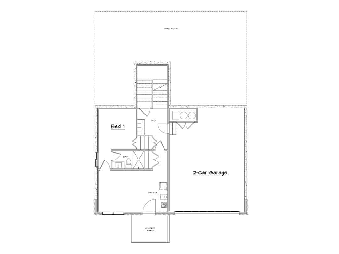
TWO STORY

Hidden Lake

Above Grade Sq.Ft.

4856

Bathrooms

Bedrooms

Garage

Width

42

Depth

49

Total Sq.Ft.

4856


Contact us for questions / modifications you would like to make.
This field is for validation purposes and should be left unchanged.
Your Name(Required)
Your Email Address(Required)