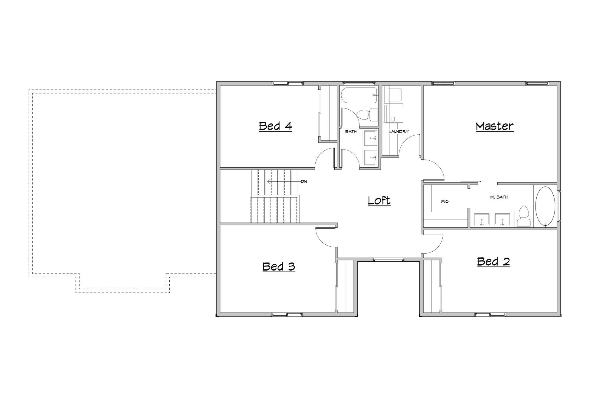
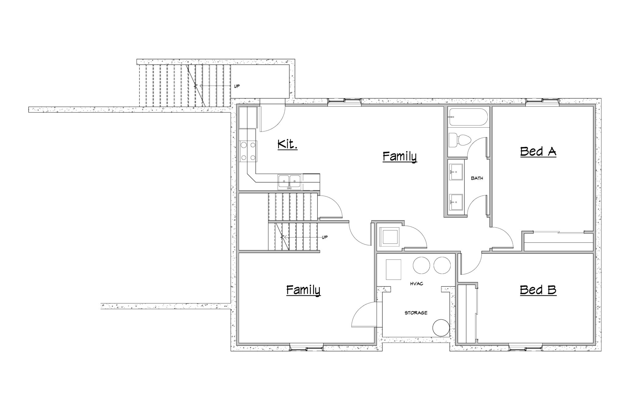
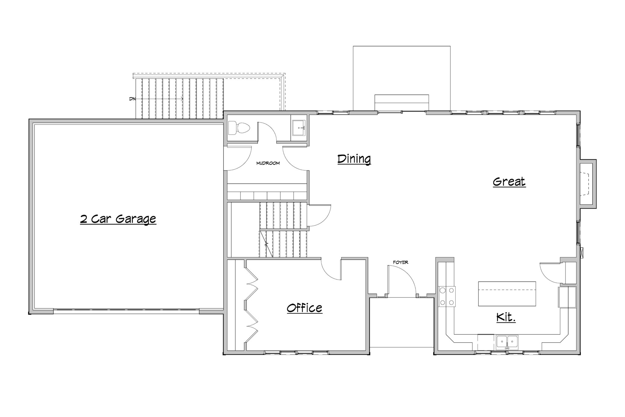
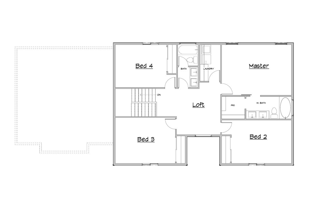
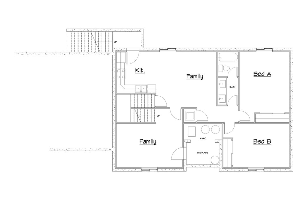
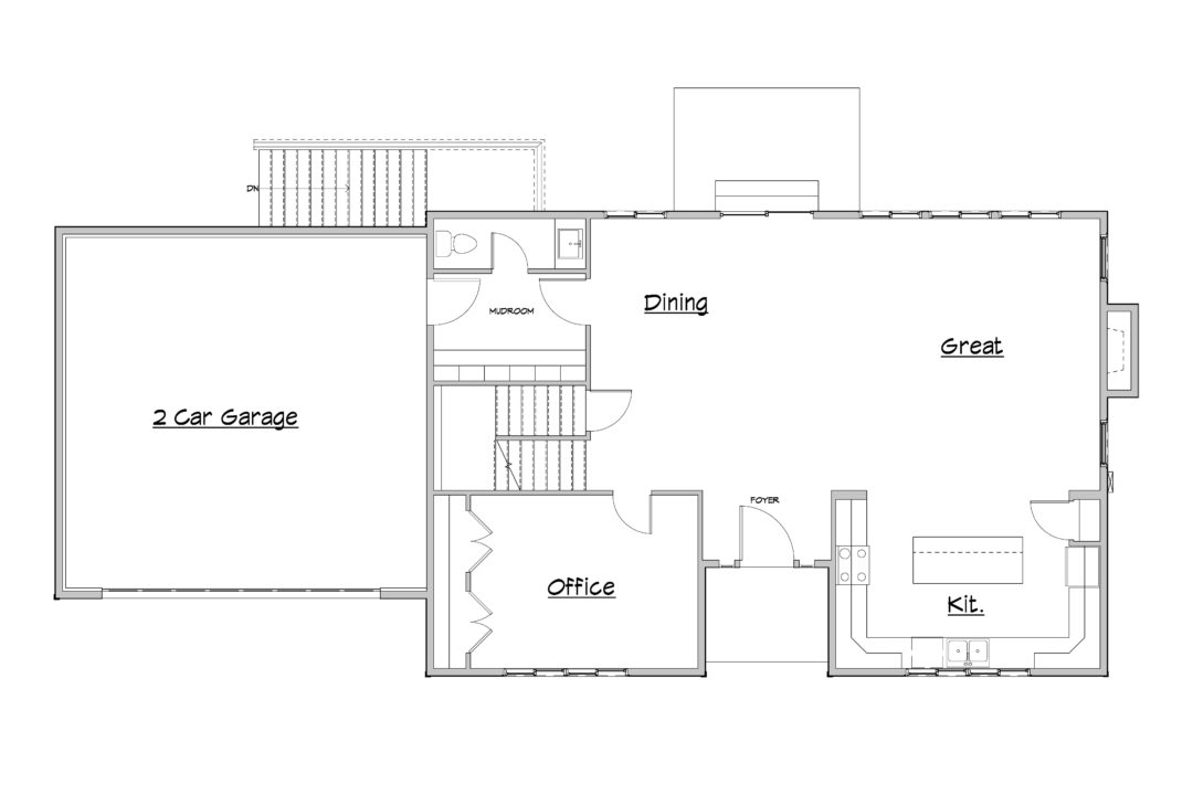
TWO STORY

Ollie

Above Grade Sq.Ft.

2473

Bathrooms

Bedrooms

Garage

Width

68

Depth

30

Total Sq.Ft.

3677


Contact us for questions / modifications you would like to make.
This field is for validation purposes and should be left unchanged.
Your Name(Required)
Your Email Address(Required)