Click Here To View Eloise - Victorian Gallery
Click Here To View Eloise - Victorian Video
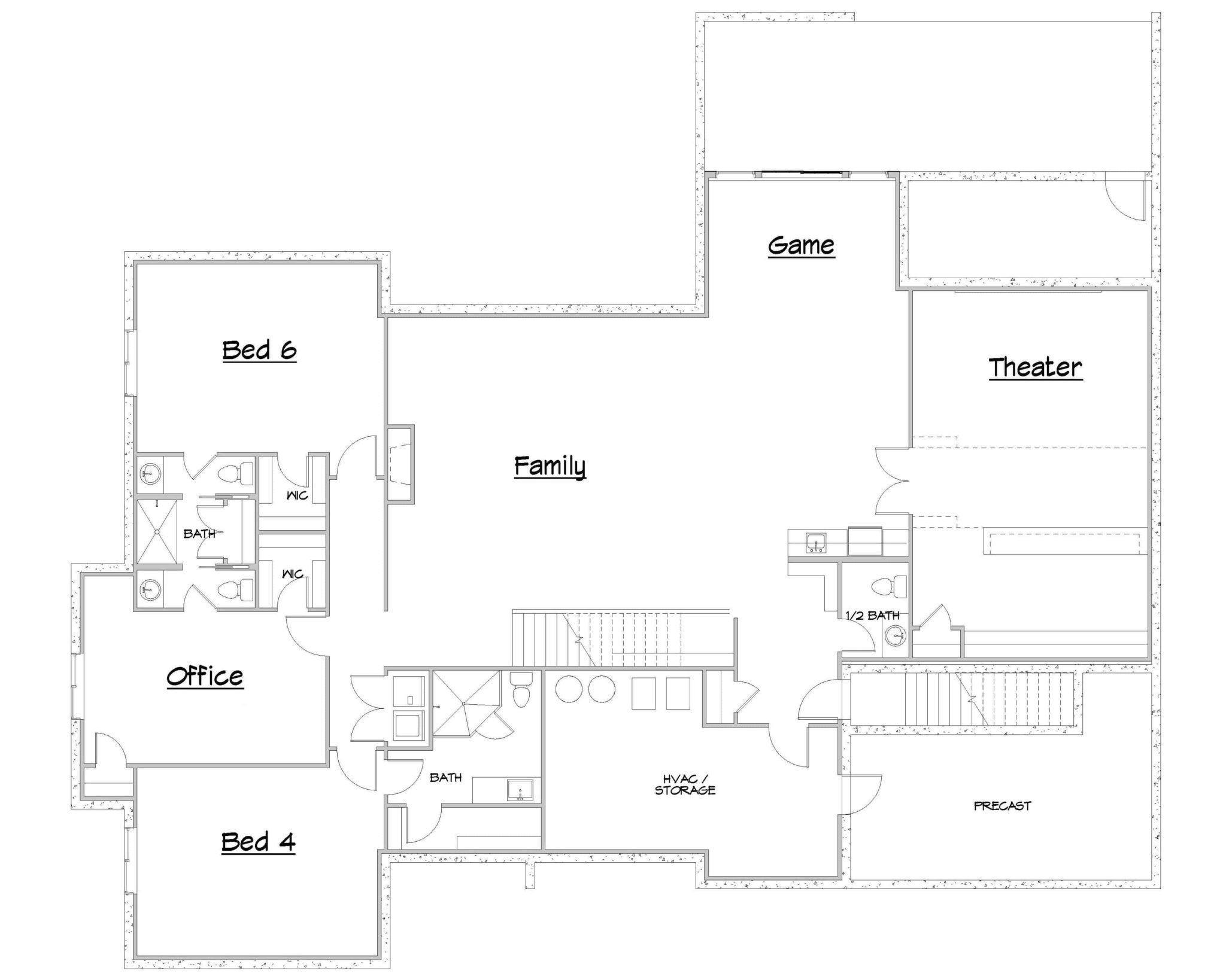
Peaceful and elegant, this stunning best-seller certainly stands out from the rest. From its open parlor catching all of the sun's rays or the kitchen with its massive scullery, perfect for dinner parties, this plan has something for everyone. Such as the massive his and hers closet and the giant bath and spa. Or for the kids, a theater and game room all on the bottom floor. Also included is an office that can be turned into another bedroom. Imagine cool summer nights laying out in the covered and open patio, enjoying the scenery from the mighty views. With the Eloise plan the only thing that could compare to its beauty would be seeing the sun set through its shimmering windows.
Click Here To View Eloise - Victorian Video
Peaceful and elegant, this stunning best-seller certainly stands out from the rest. From its open parlor catching all of the sun's rays or the kitchen with its massive scullery, perfect for dinner parties, this plan has something for everyone. Such as the massive his and hers closet and the giant bath and spa. Or for the kids, a theater and game room all on the bottom floor. Also included is an office that can be turned into another bedroom. Imagine cool summer nights laying out in the covered and open patio, enjoying the scenery from the mighty views. With the Eloise plan the only thing that could compare to its beauty would be seeing the sun set through its shimmering windows.
Contact us for questions / modifications you would like to make.







